
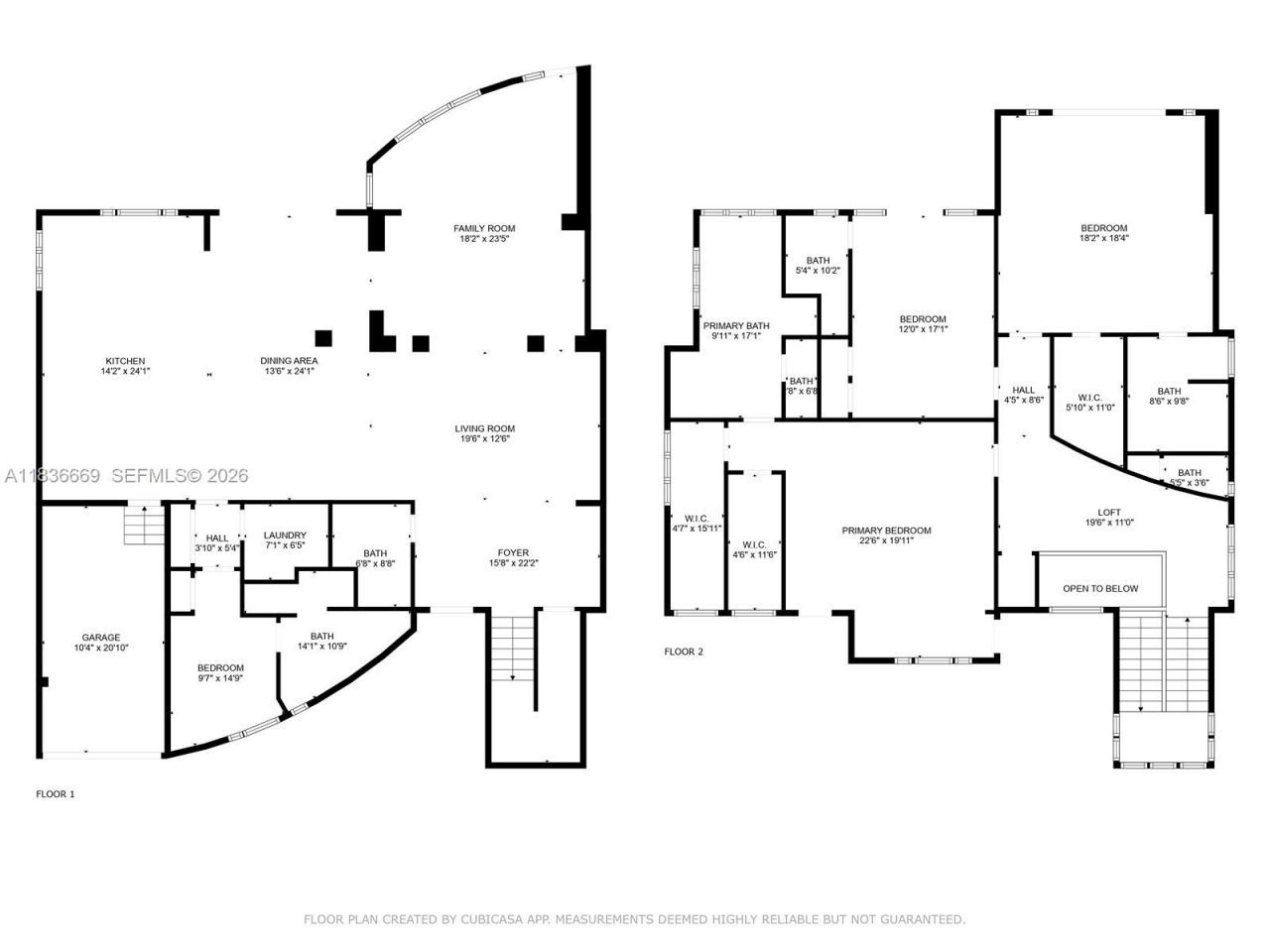
NORTH BAY ROAD | DESIGNER-READY MODERN ESTATE. Exceptional value for a modern residence extensively rebuilt and expanded in 2008 with permits, offering the scale, layout, and systems consistent with newer construction. Located on one of Miami Beachs most prestigious corridors, this high-volume home features open-concept living, 10ft ceilings, and strong underlying infrastructure.Key improvements include a newer roof (2022), elevated base construction, impact windows throughout, and updated core ...NORTH BAY ROAD | DESIGNER-READY MODERN ESTATE. Exceptional value for a modern residence extensively rebuilt and expanded in 2008 with permits, offering the scale, layout, and systems consistent with newer construction. Located on one of Miami Beachs most prestigious corridors, this high-volume home features open-concept living, 10ft ceilings, and strong underlying infrastructure.Key improvements include a newer roof (2022), elevated base construction, impact windows throughout, and updated core systems - allowing future enhancements to focus primarily on design and finishes rather than structural work. The residence is primed for cosmetic upgrades including flooring, kitchen and bath finishes, and landscaping.Oversized pool and generous grounds provide excellent potential for outdoor living and entertaining. Ideal for end-users, developers, or investors seeking a strategic value-add opportunity with a clear path to repositioning within the upper tier of North Bay Road valuations.
View MoreCourtesy of
Agency Name: The McClain Group Inc
Agency Phone: 786-234-3673
Agent Name: William McClain Jr.
Presented by
Agent Name: Brent Crowe
Agent Phone: 561.798.3955
Agency Title: The Keyes Company
Request Info
Send an email with a link to
5625 N Bay Rd, Miami Beach, FL 33140.
Email 5625 N Bay Rd, Miami Beach, FL 33140
Thank you for your inquiry! As a thank you, we have a Special Mortgage Offer for You.
We would like to provide you a free, no-obligation, home loan pre-approval review.